一、制造标准:国家建筑标准设计图集12S101 P52~56
二、选用材质:普碳钢板Q235A/热镀锌或搪瓷防腐
三、适用范围:该产品适用于建筑给水的贮存、调节水箱,采暖系统的膨胀、凝结水箱以及建筑施工、地质勘察、工业、国防工程等临时贮水水箱。
四、产品特点:
1、选材优质精良:水箱选用普碳钢板Q235A冲制成标准板块,经热镀锌或搪瓷防腐处理。
2、结构独特合理:高强度的冲压板及箱内分布均匀的镀锌件为拉筋,使箱体承压均匀合理。水箱的进水管、出水管及溢流管的管径、位置由设计决定。
3、施工方便快捷:冲压形成1000×1000mm和1000×500mm的标准板块,周边钻孔,经镀锌/搪瓷处理,现场进行组装,标准板块之间医用硅胶垫密封,螺栓连接。
4、箱体轻盈美观:高质量的冲压工艺,既保证了箱体大限度的承压需要,又降低了材料厚度,满足了箱体的美观实用的要求。
五、安装说明
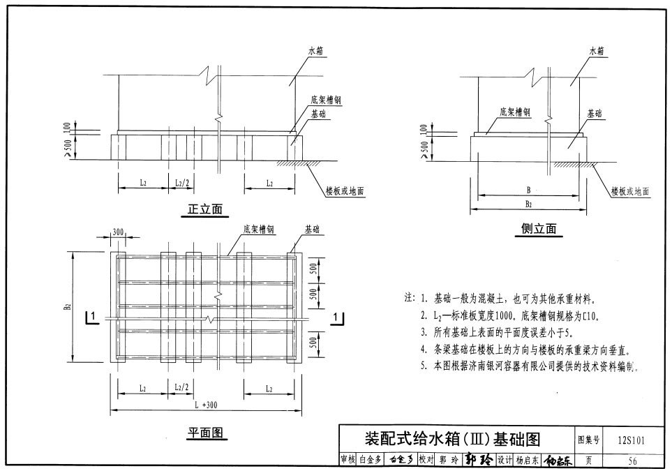
1、水箱基础要求
※ 砼基础几何尺寸应按GB02S101有关规定制定。
※ 砼基础平面高低差<5mm;
※ 非标准水箱砼基础,由我方设计。
2、水箱的安装,施工和验收
※ 工地现场装配,螺栓连接而成。
※ 施工现场有标准电源。水箱四周有≥500mm的检修空间。
※ 外观检验无锈蚀、无污染;注满水2~3h, 箱体无明显变形,焊缝无渗漏为合格。
3、水箱的使用、维修和保养
※ 配管时,切勿向配管进出水口施加过大的负荷。
※ 不要将阀门及大口径管道的重量直接施加到水箱水口,必要时设置管道支撑。
※ 对焊接管的膨胀、收缩、振动必须装伸缩柔性接头。
4、水箱配置及配套附件
※ 本公司水箱供货范围为箱体、带锁人孔、爬梯、短管及单片法兰。
※ 本公司还可以根据用户的要求提供配套的附件,如:浮球阀、玻璃管液位计及各种水箱消毒设备等。




© Copyright 2026 广州龙康机电设备有限公司 粤ICP备10035996号